采用磁致伸缩位移传感器原理测量沉降,整体式铝合金壳体,全密封防水结构IP67;高精度稳定可靠传感器芯片带零点、满度,温度等补偿;MODBUS RS485-RTU 数字信号输出;可替代国外同类型静水仪产品;可配套无线4G采集模块及第三方物联云监控平台;适用于各种类型工程、结构物的长时间沉降监测。
磁致伸缩静力水准仪
沉降仪
静力水准仪
沉降位移传感器
磁致位移传感器
沉降监控传感器
一、磁致伸缩静力水准仪 PT500-SZY20产品概述及特点:
| 磁致式位移沉降监测 | 高精度、稳定、数字放大电路,绝对误差小于0.1mm | 应用于: |
| 进口波导丝及芯体材料 | 零点、满度,温补、线性补偿 | 轨道交通路基、地铁支撑墙沉降监测 |
| 52直径304不锈钢浮子+304浮球导杆 | MODBUS RS485-RTU 数字信号输出 | 隧道上部山体及建筑物沉降监测 |
| 整体式铝合金壳体,全密封防水结构 | 可配套无线4G-DTU,实现无线平台数据监控 | 基坑、核电站、水电站沉降监测 |
| 灵敏度高、精度高、重复性好 | 配套第三方物联网监控云平台及移动端APP | 大坝及水利枢纽、高层建筑的基础沉降监测 |
| 高可靠性、高防护性、极小的温度系数 | 数据的采集、显示、统计、分析、下载 | 可替代国外同类型静水仪产品 |
| 易于安装、抗电磁干扰能力强、成本经济耐用 | 平台、手机移动端预警、APP多方位预警联动 | |
| 沉降是一个缓慢过程,在任何较短时期,反映到储液罐液面的变化都会非常细微,能否实时、精确地检测到这个微小变化,反映出地基的微小沉降,做到防微杜渐,是衡量一个静力水准仪产品好坏的关键,这对系统所集成液位传感器的实时性、精密性提出了极高要求。由于是户外安装,液位传感器的温度系数、防水性、防雷击都是关键技术。另外,静力水准仪整机的安装尺寸和易更换性也是重要的技术指标。 | ||
| 传统液位计存在的问题:受传统测量技术的局限,过去静力水准仪大多使用基于LVDT原理的电感式液位计(也有极少部分产品采用昂贵的基于CCD摄像头的光学解决方案),但电感式液位计存在:灵敏度低、测量精度低、温度系数大、安装尺寸大、不易更换等一系列缺陷。 | ||
二、磁致伸缩静力水准仪 PT500-SZY20产品型号:
| 代码 | 型号 | 类型 | |||||
| PT500 | SZY20 | 磁致式静力水准仪 | |||||
| 代码 | 量程(按实际订购量程填写) | ||||||
| 100mm | 0~100mm;0~200mm;0~300mm; | ||||||
| 0~500mm;共计4种量程规格 | |||||||
| 代码 | 输出信号类型 | ||||||
| OK | RS485(四线制)/供电9-30VDC | ||||||
| OO | 定制 | ||||||
| 代码 | 综合精度 | ||||||
| C1 | ±0.1mm(绝对误差),省略不填 | ||||||
| PT500 | SZY20 | 100mm | RS485 | ||||
三、磁致伸缩静力水准仪 PT500-SZY20产品参数:

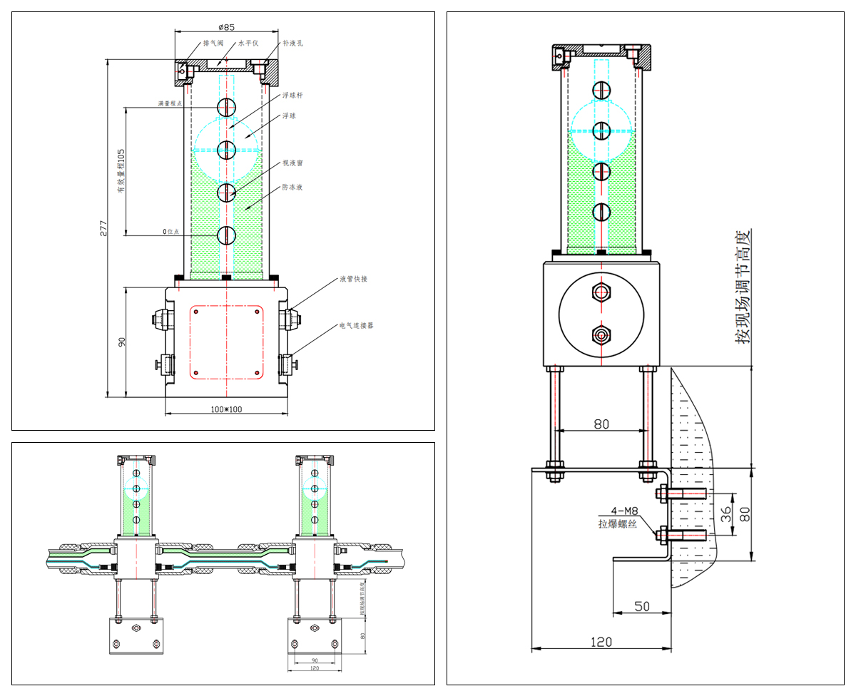
四、磁致伸缩静力水准仪 PT500-SZY20产品结构:

五、沉降测量原理及计算:

六、磁致伸缩静力水准仪 PT500-SZY20产品应用:

七、物联云监控平台

服务热线
QQ咨询

微信资询

移动端网站
